промышленные силосы от производителя
info@silosa.ru
+7 (495) 123-33-21
+7 (495) 780-47-96
+7 (800) 350-25-60
Phone icon
Заказать звонок
Открыть меню
Главная
Сертификаты
Доставка
Контакты
О компании
Поиск
Magnify icon
Промышленные силосы
от производителя
Наша компания надеется на долгосрочное, взаимовыгодное партнерство!
Menu icon
Бетоносмесители планетарные и двухвальные
Поиск
Magnify icon
Главная
/
SM 51
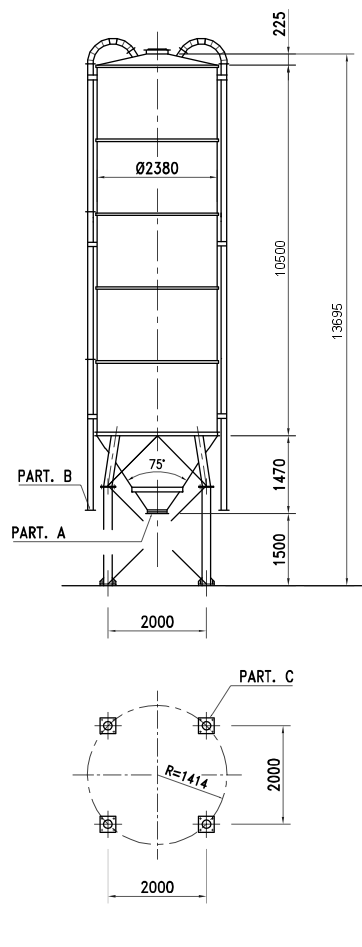
БАЗОВАЯ КОМПЛЕКТАЦИЯ СТАЛЬНОГО СИЛОСА SM 51
Оформить запрос
Ф.И.О.*
Компания*
Телефон*
Email
Примечание
Отправляя форму Вы соглашаетесь с
Соглашением об обработке персональных данных
Запросить
промышленные силосы от производителя
Шнеки
Затворы
Бетоносмесители
Вибраторы
Спирали
Силоса
Влагомеры
Смесители
Редуктора
Ленты
Просеиватели
Водоочистка
+7 (495) 123-33-21
Wechat icon